
دیزل ژنراتورهای SME ساخته شده توسط SDEC با موتورهای سری R به حرکت در می آیند. این موتورها دارای مشخصه ویژه توان بالا، گشتاور بزرگ، کارآیی مصرف سوخت و خروجی صدای پایین هستند. این ژنراتورها به لطف سیستم جرقه زنی باتری بدون نیاز به نگهداری مداوم، تنها با پر کردن مخازن سوخت و خنک کننده و زدن کلید پاور روشن می شوند. ژنراتور سری R ملزومات دستورالعمل آلایندگی China IV و China V را رعایت می کنند.
پارامترهای فنی مهم| مدل | خروجی نامی | خروجی در حالت آماده به کار | مدل موتور | نوع گاورنر | نوع رابط | مدل ژنراتور | جریان نامی | ابعاد Mm | وزن Kg |
| D500MG | 500 | 550 | S6R2-PTA-C | الکتریکی | SAE0/18 | MP-500-4 | 902 | 3400*1615*2090 | 4880 |
| D500MS | 500 | 550 | S6R2-PTA-C | الکتریکی | SAE0/18 | KF-W4.D-500 | 902 | 3400*1615*2090 | 5025 |
| D540MG | 540 | 594 | S6R2-PTA-C | الکتریکی | SAE0/18 | MX-560-4 | 974 | 3745*1615*2090 | 5280 |
| D540MS | 540 | 594 | S6R2-PTA-C | الکتریکی | SAE0/18 | KF-W4.D-550 | 974 | 3460*1615*2090 | 5335 |
| D600MG | 600 | 660 | S6R2-PTAA-C | الکتریکی | SAE0/18 | MX-600-4 | 1083 | 3975*1530*2025 | 6040 |
| D600MS | 600 | 660 | S6R2-PTAA-C | الکتریکی | SAE0/18 | KF-W4.D-600 | 1083 | 4030*1530*2025 | 6365 |
| D800MG | 800 | 880 | S12H-PTA | الکتریکی | SAE0/18 | MX-850-4 | 1443 | 4650*1660*2070 | 8150 |
| D800MS | 800 | 880 | S12H-PTA | الکتریکی | SAE0/18 | KF-W4.D-800 | 1443 | 4650*1660*2070 | 8180 |
| D1000MG | 1000 | 1100 | S12R-PTA-C | الکتریکی | SAE00/21 | MX-1030-4 | 1804 | 4590*2200*2515 | 10800 |
| D1000MS | 1000 | 1100 | S12R-PTA-C | الکتریکی | SAE00/21 | KF-W4.D-1000 | 1804 | 4635*2200*2515 | 10540 |
| D1100MG | 1100 | 1210 | S12R-PTA2-C | الکتریکی | SAE00/21 | MX-1240-4 | 1985 | 4590*2200*2515 | 11000 |
| D1100MS | 1100 | 1210 | S12R-PTA2-C | الکتریکی | SAE00/21 | KF-W4.D-1120 | 1985 | 4635*2200*2515 | 10865 |
| D1200MG | 1200 | 1320 | S12R-PTAA2-C | الکتریکی | SAE00/21 | MX-1240-4 | 2165 | 5110*2205*2740 | 11300 |
| D1200MS | 1200 | 1320 | S12R-PTAA2-C | الکتریکی | SAE00/21 | KF-W4.D-1200 | 2165 | 5110*2205*2740 | 11270 |
| D1360MG | 1360 | 1496 | S16R-PTA-C | الکتریکی | SAE00/21 | MX-1360-4 | 2454 | 5520*2200*2605 | 13000 |
| D1360MS | 1360 | 1496 | S16R-PTA-C | الکتریکی | SAE00/21 | KF-W4.D-1360 | 2454 | 5240*2200*2605 | 12780 |
| D1500MG | 1500 | 1650 | S16R-PTA2-C | الکتریکی | SAE00/21 | MX-1540-4 | 2706 | 5540*2210*2930 | 15500 |
| D1500MS | 1500 | 1650 | S16R-PTA2-C | الکتریکی | SAE00/21 | KF-W4.D-1500 | 2706 | 5440*2210*2930 | 15550 |
| D1600MG | 1600 | 1760 | S16R-PTAA2-C | الکتریکی | SAE00/21 | MX-1600-4 | 2887 | 5870*2210*2930 | 17500 |
| D1600MS | 1600 | 1760 | S16R-PTAA2-C | الکتریکی | SAE00/21 | KF-W4.D-1670 | 2887 | 5760*2210*2930 | 17600 |
| D2000MGE | 2000 | S16R2-PTAW | الکتریکی | SAE00/21 | MXL-2000-4 | 3280 | 6380*2210*3450 | 19800 | |
| D2000MSE | 2000 | S16R2-PTAW | الکتریکی | SAE00/21 | KF-W4.D-2000 | 3280 | 6300*2210*3450 | 19700 |
* پارامترهای بالا تنها برای مرجع بوده و ممکن است بدون اعلام قبلی تغییر کنند.

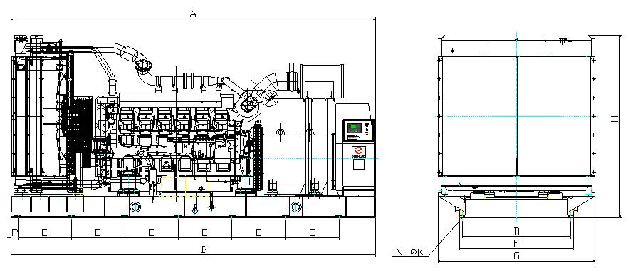
| مدل | A | B | D | E | F | H | G | P | N | K |
| D500MG | 3400 | 3400 | 1090 | 750 | 1170 | 2090 | 1615 | 300 | 10 | 24 |
| D500MS | 3400 | 3400 | 1090 | 750 | 1170 | 2090 | 1615 | 300 | 10 | 24 |
| D540MG | 3745 | 3745 | 1090 | 750 | 1170 | 2090 | 1615 | 300 | 10 | 24 |
| D540MS | 3460 | 3460 | 1090 | 750 | 1170 | 2090 | 1615 | 300 | 10 | 24 |
| D600MG | 3975 | 3975 | 1090 | 800 | 1170 | 2025 | 1530 | 200 | 10 | 24 |
| D600MS | 4030 | 4030 | 1090 | 800 | 1170 | 2025 | 1530 | 200 | 10 | 24 |
| D800MG | 4650 | 4650 | 1250 | 750 | 1350 | 2070 | 1660 | 350 | 12 | 24 |
| D800MS | 4650 | 4650 | 1250 | 750 | 1350 | 2070 | 1660 | 350 | 12 | 24 |
| D1000MG | 4590 | 4590 | 1120 | 800 | 1200 | 2515 | 2200 | 145 | 12 | 24 |
| D1000MS | 4635 | 4635 | 1120 | 800 | 1200 | 2515 | 2200 | 145 | 12 | 24 |
| D1100MG | 4590 | 4590 | 1120 | 800 | 1200 | 2515 | 2200 | 145 | 12 | 24 |
| D1100MS | 4635 | 4635 | 1120 | 800 | 1200 | 2515 | 2200 | 145 | 12 | 24 |
| D1200MG | 5110 | 5110 | 1520 | 750 | 1600 | 2740 | 2205 | 100 | 14 | 24 |
| D1200MS | 5110 | 5110 | 1520 | 750 | 1600 | 2740 | 2205 | 100 | 14 | 24 |
| D1360MG | 5520 | 5520 | 1500 | 800 | 1600 | 2605 | 2200 | 400 | 14 | 24 |
| D1360MS | 5240 | 5240 | 1500 | 800 | 1600 | 2605 | 2200 | 320 | 14 | 24 |
| D1500MG | 5540 | 5540 | 1500 | 850 | 1600 | 2930 | 2210 | 200 | 14 | 24 |
| D1500MS | 5440 | 5440 | 1500 | 850 | 1600 | 2930 | 2210 | 200 | 14 | 24 |
| D1600MG | 5870 | 5870 | 1500 | 850 | 1600 | 2930 | 2210 | 550 | 14 | 24 |
| D1600MS | 5760 | 5760 | 1500 | 850 | 1600 | 2930 | 2210 | 450 | 14 | 24 |
| D2000MGE | 6380 | 6380 | 1500 | 850 | 1600 | 3450 | 2210 | 550 | 14 | 24 |
| D2000MSE | 6300 | 6300 | 1500 | 850 | 1600 | 3450 | 2210 | 550 | 14 | 24 |
| ولتاژ | فرکانس | ||||||
| انحراف حالت پایدار - % | انحراف حالت گذرا - % | مدولاسیون - % | زمان بازیابی - ثانیه | افت فرکانس - % | باند فرکانسی حالت پایدار - % | انحراف حالت گذرا | زمان بازیابی - ثانیه |
| ≤±1 | -15~+20 | 0.3 | ≤4 | ≤3 | ≤0.5 | -7~+10 | ≤3 |
| بازه ولتاژ: بازه تنظیم ولتاژ در حالت بی باری 95% تا 105% ولتاژ نامی است | |||||||

